Visualization of the Lokhöfe building
Visualization of the Lokhöfe building © S&P Commercial Development GmbH

Lokhöfe Rosenheim

Location: 
Rosenheim

Completion:
2024

Back to Projects

Lokhöfe Rosenheim

Location in Rosenheim
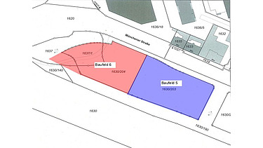
An ensemble of buildings on two construction sites will be built on the plots of land belonging to the municipality of Rosenheim, Münchner Str., parcel no. 1630/203 (construction site 5) and parcel no. 1630/204 (construction site 6).

The "LOKHÖFE Rosenheim" project is located in the city center of Rosenheim in the immediate vicinity of the train station and the central bus station. The connections to local and regional public transport are therefore very good. Due to the project's central location, the old town, stores and leisure facilities are very easy to reach.

In February 2022, S&P Commercial Development GmbH awarded Ed. Züblin AG the contract to construct the buildings on construction sites 5 and 6 as the general contractor on a turnkey basis. Completion is expected in the 4th quarter of 2024. All planning will be carried out by the client. DGNB building certification in the "Gold" standard is being sought for both the planning and the construction.

Description of the building ensemble:

Construction site 5 - basement/ground floor and ground floor to 5th floor
Hotel PREMIER INN with 145 guest roomsEDEKA store on the ground floor with approx. 1,500 m² of retail spaceOffice buildingUnderground car park with approx. 101 parking spaces
Construction site 6 - high-rise building - basement and ground floor to 10th floorUpper floor
Business tower with office space
Site 6 – Parking garage adjacent to the high-rise building
Parking garage with 4 parking levels and approx. 246 parking spacesThe facade of the parking garage will be landscaped
Another building complex is being built in the immediate vicinity at the same time, which will be inhabited by senior citizens and students in the sense of intergenerational use after completion.

All underground components will be built in solid reinforced concrete construction in accordance with the WU guideline. The above-ground components will also be constructed in solid reinforced concrete. Prefabricated or semi-prefabricated reinforced concrete elements will be used on some of the upper floors.
The roofs of the buildings will be constructed as flat slabs in the "retention roof" design with extensive green roofs and the roof slab of the parking garage with intensive green roofs. In these types of construction, the green roofs and intelligent rainwater management work together effectively and sustainably.
Rainwater is disposed of via retention and evaporation and, in the event of heavy rainfall, via underground infiltration systems. The building services are supplied via resource-saving district heating and cooling pipes from Stadtwerke Rosenheim. For the PREMIER INN Hotel on construction site 5, so-called "prefabricated bathrooms" will be produced in the factory, delivered to the construction site and installed.

Around 1,800 m² of landscaped open spaces will be created on construction sites 5 and 6 that can be used by public visitors.

  • Characteristics
    • Plot areas (GF): Building plot 5 approx. 3,962 m²
      Building plot 6 approx. 3,362 m²
    • Floor areas in accordance with building use regulations (GF):
      Construction site 5 approx. 13,638 m²
      Construction site 6 High-rise building approx. 5,530 m²
      Construction site 6 Multi-storey parking lot approx. 8,035 m²
  • Construction time
    • Start of construction 1st quarter 2022
    • Completion 4th quarter 2024
  • Construction site regular operation
    • Monday to Friday 07:00 to 19:00
    • Saturday (in exceptional cases) 07:00 to 15:00
    • There is generally no work on Sundays and public holidays.

Certified by the German Sustainable Building Council (DGNB)

Ed. Züblin AG is pursuing several goals with this project: A sustainable construction site organisation, the conservation of resources as well as the minimisation of emissions, responsibility for the health and well-being of the builders, the cultivation of good neighbourliness and, of course, high-quality construction. For this, Ed. Züblin AG was the first company to be recognised by the German Sustainable Building Council (DGNB).

You can find more information about the DGNB system for sustainable construction sites here: https://www.dgnb.de/en/certification/buildings/construction-site

Selected measures in the project

  • Prefabricated parts & prefabricated bathrooms

    Precast reinforced concrete elements (e.g. stairs) and semi-precast concrete elements (e.g. element walls and element ceilings) will be used. In addition, so-called "prefabricated bathrooms" will be supplied and installed in the hotel.

  • Logistics and waste disposal

    In order to reduce the transportation of materials to the construction site, the aim is for delivery vehicles to have full loads. Construction residues and waste are separated on the construction site and for disposal.

  • Saving resources and reducing emissions through LEAN construction

    The construction processes are planned and controlled in line with "LEAN Construction". Timber consumption is reduced through the use of system formwork.

  • Energy management in construction

    Energy-saving technologies are being sought in the construction process, e.g. LED technology for the construction lighting, energy-saving radiators and appliances in the construction site containers. Efforts are also being made to use resource-saving district heating from Stadtwerke at an early stage and during the construction process.

Certification contact person IB Sorge, Munich
Project contact Elmar Gloser
Damir Matesic
Construction site address BF5: Eduard-Rüber-Straße 13
(entrance office southeast part of the building),
83022 Rosenheim
Münchner Straße 65
(entrance market north-eastern part of the building),
83022 Rosenheim
Münchener Straße 67
(entrance hotel north-western part of the building),
83022 Rosenheim
BF6: Münchener Straße 69,
83022 Rosenheim

Phone +49 8024 90162-21
ZÜBLIN Subdivision Bavaria
Unit Munich
Holzkirchen location

and

Phone +49 9305 889 - 0
ZÜBLIN Subdivision Central
Unit Würzburg
Download Press release
Link DGNB: Certification
Construction site webcam:
https://portal1716.webcam-profi.de/
Construction plan locomotive yards © S&P Commercial Development GmbH