BE-Plan Züblin Special Civil Engineering
BE-Plan Züblin Special Civil Engineering © BE-Plan Züblin Spezialtiefbau

RS76, Munich

Location: 
Munich

Completion:
2026

Back to Projects

RS76, Munich

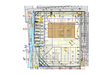
Location Richard-Strauss-Straße 76 in Munich
In the city of Munich, the construction of two high-rise buildings with a frame structure and several basement levels is planned at Richard-Strauss-Straße 76 on plot 214/17 in the Bogenhausen district .

The former Siemens building at the site was already demolished in 2021.

Half of the excavation pit design for the approx. 140m×140m= 19,600m² site envisages a circumferential bored pile wall and the other half a sheet pile wall, both of which are back-anchored.
Due to the subway tube running next to the excavation pit, the western side of the excavation pit must be partially supported with steel bracing in the excavation pit.

Züblin Spezialtiefbau GmbH will construct the excavation pit as a turnkey project, i.e. including preparatory measures (site protection, explosive ordnance sounding) and excavation of the earth for the subsequent shell construction.

The project is aiming for DGNB "Sustainable Construction Site" certification from the German Sustainable Building Council.

  • Characteristics
    • Plot area: approx. 19,600 m²
    • Bored pile wall d=90cm 6,366.0 m
    • Bored pile wall d=60cm 1,495.0 m
    • Running meters of anchoring (license temporary) 17,924.0 m
    • Sheet pile wall: 4,883.0 m²
    • Excavated earth: 188,300.0 m³
  • Construction time
    • Preliminary work (explosive ordnance, drilling templates) from November 2022 - February 2023
    • Pile wall excavation support from January 2023 - June 2023
    • Sheet pile wall excavation support from March 2023 - April 2023
    • Anchoring and steel reinforcement (in stages) from April 2023 - September 2025
    • Excavation and remaining work (in stages) from March 2023 - September 2025
    • Handover to shell construction (in stages) from February 2024
    • Handover to shell construction (in stages) by September 2025
    • KITA foundation from March 2026 - May 2026
  • Construction site regular operation
    • Monday to Friday 07:00 to 19:00
    • Saturday 07:00 to 15:00
    • There is generally no work on Sundays and public holidays.

Certified by the German Sustainable Building Council (DGNB)

Ed. Züblin AG is pursuing several goals with this project: A sustainable construction site organisation, the conservation of resources as well as the minimisation of emissions, responsibility for the health and well-being of the builders, the cultivation of good neighbourliness and, of course, high-quality construction. For this, Ed. Züblin AG was the first company to be recognised by the German Sustainable Building Council (DGNB).

You can find more information about the DGNB system for sustainable construction sites here: https://www.dgnb.de/en/certification/buildings/construction-site

Selected measures in the project

  • Noise protection

    To reduce noise during the rotary drilling work, "curtains" made of noise protection mats are installed in front of the piling rig using a separate crawler crane. In some areas, scaffolding with planking made of noise protection mats is installed and moved in front of the piling equipment. A monitoring program accompanies the work.

  • Use of demolition material

    The demolition material from the existing building was not completely removed and disposed of. Some of it was temporarily stored on site, crushed and reinstalled as a subgrade for the rotary drilling equipment. This saved the extraction and transportation of large quantities of fill material.

  • Truck mixer wash bay

    The residual quantities of ready-mixed concrete may only be unloaded at a separate location on the construction site, and the mixer trucks may only wash there. The small amount of concrete material produced at the washing area is crushed using a hydraulic excavator and handed over to the earthworks contractor as crushed concrete (the contractor disposes of it separately or reuses it after crushing)

  • Photovoltaics

    Negotiations are currently underway with installers and Stadtwerke München to equip the roof area of the Containerburg with photovoltaic systems.

  • Tree protection

    In order not to damage the adjacent planting (tree crowns) with large equipment (rotary drilling, sheet pile driving), wooden fences were made and installed in sections. No construction site traffic is permitted between the planted boundary and the wooden fence.

  • Sheet piling

    The temporary sheet piling on the south and east sides of the excavation pit is being constructed with recyclable and therefore reusable sheet piles. Sheet piles from the "EcoSheetPileTM Plus" range from the manufacturer ArcelorMittal are being used: these are made from 100% scrap steel using 100% renewable energy, which reduces their carbon footprint by around 80% compared to conventional sheet piles.

Certification contact person Christoph Black
Project contact Christoph Romeis
Hans Loser
Construction site address Richard-Strauss-Strasse 76
81679 Munich

Phone +49 711 7883-460
Züblin Spezialtiefbau GmbH
Secretariat Unit South
Download Press release
Link DGNB: Certification