Visualisierung Gebäude Lokhöfe
Visualisierung Gebäude Lokhöfe © S&P Commercial Development GmbH

Lokhöfe Rosenheim

Ort: 
Rosenheim

Fertigstellung:
2024

Zurück zu Projekte

Lokhöfe Rosenheim

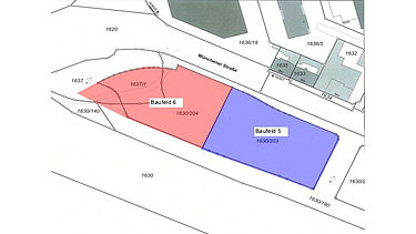
Standort in Rosenheim
Auf den Grundstücken der Gemeinde Rosenheim, Münchner Str., Flur Nr. 1630/203 (Baufeld 5) und Flur Nr. 1630/204 (Baufeld 6) wird ein Gebäudeensemble auf zwei Baufeldern entstehen.

Das Projekt „LOKHÖFE Rosenheim“ befindet sich in der Innenstadt von Rosenheim in unmittelbarer Nähe zum Bahnhof und dem zentralen Busbahnhof. Die Anbindungen an den öffentlichen Nah- und Regionalverkehr sind somit sehr gut. Aufgrund der zentrumsnahen Lage des Projektes sind die Altstadt, Geschäfte und auch Freizeiteinrichtungen sehr gut erreichbar.

Die Fa. Ed. Züblin AG hat im Februar 2022 von S&P Commercial Development GmbH den Auftrag erhalten, die Gebäude der Baufelder 5 und 6 als Generalunternehmer schlüsselfertig zu erstellen. Die Fertigstellungen werden im 4. Quartal des Jahres 2024 erwartet. Sämtliche Planungen erfolgen durch den Bauherrn. Es wird sowohl für die Planungen als auch für die Ausführungen die DGNB Gebäudezertifizierung im Standard „Gold“ angestrebt.

Beschreibung des Gebäudeensembles:

Baufeld 5 – TG/UG und EG bis 5.OG
Hotel PREMIER INN mit 145 GästezimmernEDEKA Markt im EG mit ca. 1.500 m² VerkaufsflächeBürogebäudeTiefgarage mit ca. 101 Stellplätzen
Baufeld 6 – Hochhaus – UG und EG bis 10.OG
Businesstower mit Büroflächen
Baufeld 6 – Parkhaus an das Hochhaus angrenzend
Parkhaus mit 4 Parkebenen und ca. 246 StellplätzenDie Fassade des Parkhauses wird begrünt
In unmittelbarer Nachbarschaft entsteht zeitgleich noch ein weiterer Gebäudekomplex, welcher nach Fertigstellung von Senioren und Studenten im Sinne einer generationsübergreifenden Nutzung bewohnt werden wird.

Alle unterirdischen Bauteile werden in massiver Stahlbetonbauweise gemäß WU-Richtlinie erstellt. Die Ausführungen der oberirdischen Bauteile erfolgen ebenso in massiver Stahlbetonbauart. Es werden in den Obergeschossen teilweise Stahlbetonfertigteile bzw. Halbfertigteile zum Einsatz kommen.
Die Dächer der Gebäude werden als Flachdecken in der Bauart „Retentionsdächer“ mit extensiven Dachbegrünungen und die Dachdecke des Parkhauses mit intensiven Begrünungen ausgeführt. In diesen Bauarten wirken die Dachbegrünungen und das intelligente Regenwassermanagement effektiv und nachhaltig zusammen.
Die Entsorgung des Regenwassers erfolgt über Rückhaltung und Verdunstung und bei Starkregenereignissen über unterirdische Rigolen-Systeme. Die haustechnischen Versorgungen der Gebäude erfolgen über ressourcenschonende Fernwärme- und Kälteleitungen der Stadtwerke Rosenheim. Für das PREMIER INN Hotel im Baufeld 5 werden sog. „Fertigbäder“ werkseitig erstellt, auf die Baustelle geliefert und montiert.

Es entstehen auf den Baufelder 5 und 6 ca. 1.800 m² gestaltete und für den öffentlichen Besucher nutzbare Freiflächen.

  • Kenndaten
    • Grundstücksflächen (GF): Baufeld 5 ca. 3.962 m²
      Baufeld 6 ca. 3.362 m²
    • Geschossflächen gemäß Baunutzungsverordnung (GF):
      Baufeld 5 ca. 13.638 m²
      Baufeld 6 Hochhaus ca. 5.530 m²
      Baufeld 6 Parkhaus ca. 8.035 m²
  • Bauzeit
    • Baubeginn 1. Quartal 2022
    • Fertigstellung 4. Quartal 2024
  • Baustellenregelbetrieb
    • Montag bis Freitag 07:00 Uhr bis 19:00 Uhr
    • Samstag (in Ausnahmefällen) 07:00 Uhr bis 15:00 Uhr
    • Sonntag und feiertags finden in der Regel keine Arbeiten statt.

Zertifiziert von der Deutschen Gesellschaft für Nachhaltiges Bauen (DGNB)

Bei diesem Projekt verfolgt die Ed. Züblin AG mehrere Ziele: Eine nachhaltige Baustellenorganisation, die Schonung der Ressourcen sowie die Minimierung der Emissionen, die Verantwortung für die Gesundheit und das Wohlbefinden der Bauenden, die Pflege guter Nachbarschaft und natürlich eine qualitätsreiche Bauausführung. Dafür wurde die Ed. Züblin AG als erstes Unternehmen von der Deutschen Gesellschaft für Nachhaltiges Bauen (DGNB) ausgezeichnet.

Hier finden Sie weitere Informationen zum DGNB System für nachhaltige Baustellen: https://www.dgnb-system.de/de/gebaeude/baustelle/

Ausgewählte Maßnahmen am Projekt

  • Fertigteile & Fertigbäder

    Es werden Stahlbetonfertigteile (z.B. Treppen) und Halbfertigteile aus Beton (z.B. Elementwände und Elementdecken) zum Einsatz kommen. Darüber hinaus werden im Hotel sog. „Fertigbäder“ geliefert und montiert.

  • Logistik und Abfallentsorgung

    Um die Materialtransporte zur Baustelle zu reduzieren, werden volle Ausladungen der Anlieferfahrzeuge angestrebt. Es werden Baureste und Abfälle auf der Baustelle und für die Entsorgung getrennt.

  • Ressourceneinsparung und Emissionsminderung durch LEAN - Construction

    Die Bauprozesse werden im Sinne der sog. „LEAN Construction“ geplant und gesteuert. Die Reduktion des Bauholzverbrauchs erfolgt durch die Anwendung von Systemschalungen.

  • Baubetriebliches Energiemanagement

    Im Bauprozess werden energiesparende Technologien angestrebt, z.B. LED-Technik für die Baubeleuchtungen, energiesparende Heizkörper und Geräte in den Baustellencontainern. Es wird darüber hinaus angestrebt, frühzeitig und im Bauprozess die ressourcenschonende Fernwärme der Stadtwerke zu nutzen.

Ansprechperson Zertifizierung IB Sorge, München
Projektansprechpartner Elmar Gloser
Damir Matesic
Baustellenadresse BF5: Eduard-Rüber-Straße 13
(Eingang Büro südöstliche Gebäudeteil),
83022 Rosenheim
Münchner Straße 65
(Eingang Markt nordöstlicher Gebäudeteil),
83022 Rosenheim
Münchener Straße 67
(Eingang Hotel nordwestlicher Gebäudeteil),
83022 Rosenheim
BF6: Münchener Straße 69,
83022 Rosenheim

Tel. +49 8024 90162-21
ZÜBLIN-Direktion Bayern
Bereich München
Standort Holzkirchen

und

Tel. +49 9305 889 - 0
ZÜBLIN-Direktion Mitte
Bereich Würzburg
Download Pressemitteilung
Link DGNB: Zertifizierung
Baustellenwebcam: 
https://portal1716.webcam-profi.de/
Bauplan Lokhöfe © S&P Commercial Development GmbH